David și regele Saul
- Invidia — зависть
- Luptă / bătălie — сражение, битва
- Frate (pl. frați) — брат (братья)
- Frumos (f. frumoasă) — красивый (-ая) / красавец
- Înfățișare / aspect — внешность
- Cel mai important — самое главное
- Gânduri rele — плохие мысли
- Piatră (pl. pietre) — камень (камни)
- Traistă / geantă — сумка
- Înalt — высокий
- Discurs — ...
Помощь в создании дополнительных заданий по румынскому языку
Контактный электропомогатор
Memorați
Мои трагические ошибки
- 20 de ani
- 100 de lei
- mii de oameni
Pilda semănătorului
Энергия будущего
Пастух и волк
Aici învăț limba română prin imagini, povești și lumină
- Un copac — дерево
- Un porumbel — голубь
- Un câine — собака
- O femeie — женщина
- O alee — аллея
- Lumină și umbră — свет и тень
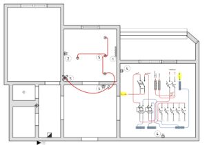
Если электрик не оставил схему — требуйте жалобную книгу!
Услуги электрика в Кишиневе
🔌 Надёжный электрик в Кишинёве, районе Ботаника – гарантия безопасности, качества и доступных цен. Выполняю работы любой сложности, от замены розеток до полного электромонтажа в новостройках и частных домах.
💡 Какие услуги я предлагаю?
1. Электромонтаж и ремонт проводки
✔ Замена старой электропроводки.
✔ Монтаж новых линий в квартирах, домах, офисах.
✔ Поиск и устранение замыканий и повреждений проводки.
2. Установка и замена электрооборудования
✔ Установка и замена розеток, выключателей, автоматов.
✔ Монтаж электросчётчиков, стабилизаторов напряжения.
✔ Подключение бытовой техники (бойлеры, стиральные машины, духовые шкафы и т. д.).
3. Освещение и светодиодные системы
✔ Монтаж люстр, бра, точечных светильников.
✔ Установка светодиодных лент и умного освещения.
✔ Настройка датчиков движения и таймеров.
4. Электрика для частных домов и новостроек
✔ Проектирование и разводка электросетей с нуля.
✔ Установка электрощитов, автоматов защиты.
🔹 Почему выбирают ElectroBotanic?
✅ Квалификация – опыт работы более 15 лет.
✅ Честные цены – без скрытых доплат и обмана.
✅ Гарантия на работу – качественный монтаж и безопасность.
✅ Срочный вызов электрика – оперативное решение проблем.
💬 Как заказать услуги?
Как заказать услуги?
📞 Позвоните: 789-785-98
📩 Напишите в Telegram / WhatsApp / Viber
📌 Часто задаваемые вопросы (FAQ)
💬 Сколько стоит вызов электрика?
Стоимость зависит от сложности работы. Оставьте заявку – я рассчитаю точную цену.
💬 Можно ли заменить проводку частично?
Да, можно заменить отдельные участки, но в некоторых случаях выгоднее полностью обновить систему.









