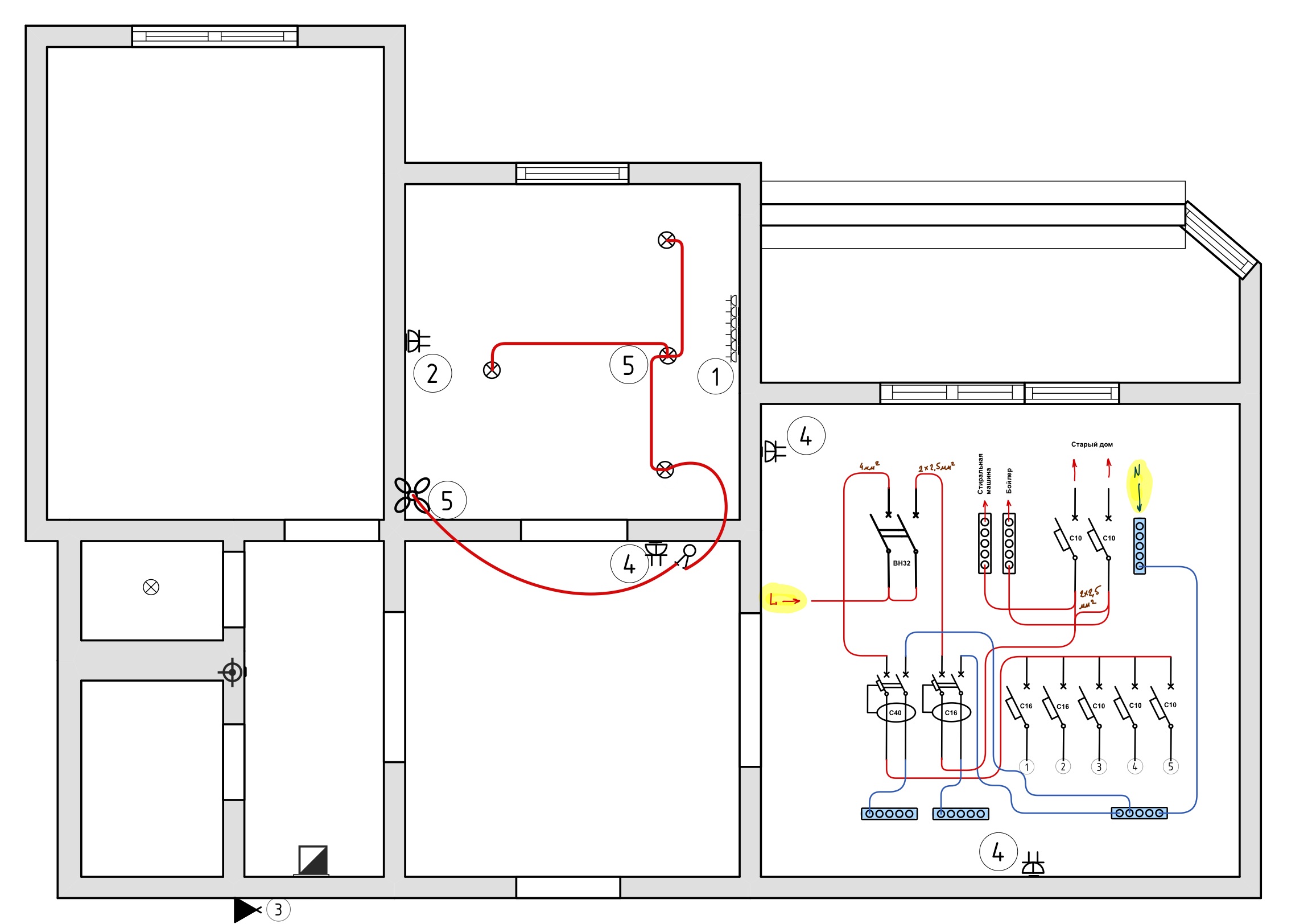
Если электрик не оставил схему — требуйте жалобную книгу!

Нет, удобно устроились! Накрутили-навертели, а нам расхлёбывай! Что где тут как соединяется? Провода из подразетников торчат, электрики улетели за границу и пожелали всего хорошего. Как теперь быть? У вас бывало такое? Не переживайте. Всё поправимо. Нарисую план, соединю и разжую — что и как подключено. А вообще — если электрик сделал монтаж и не оставил … Читать далее